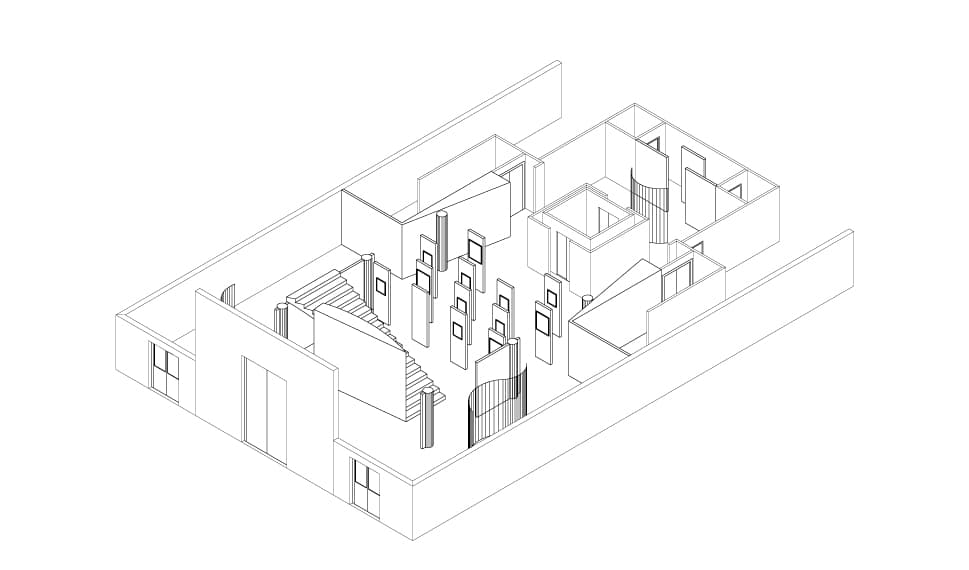
Intimate FictionsClosed27y 22w 05d 01h 24m 54s
27y 22w 05d 01h 24m 54s
11.1998temporary exhibitionArea : 600 M²

1/5
Electra Space,Paris, France
Owner
The Centre Pompidou, Centre National d'Art et de Culture
Links

3/5

2/5

5/5
4/5

The Centre Pompidou, Centre National d'Art et de Culture


