The botanical greenhouses of AuteuilPermanent10y 24w 01d 01h 13m 42s
10y 24w 01d 01h 13m 42s
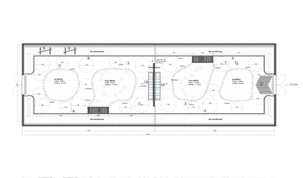
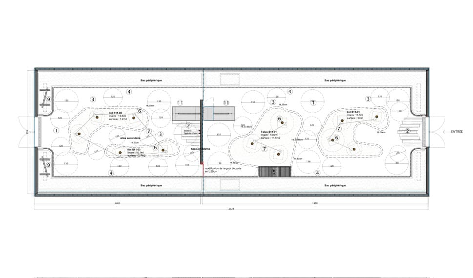
10.2015permanent exhibitionArea : 1000 M²

1/11
The Jardin des Serres d’Auteuil,Paris, France
Owner
The Jardin Botanique de la Ville de Paris
Collaboration
c-album (graphic design, proxy), KABA (landscape architect)

3/11

2/11

5/11

4/11

7/11

6/11

9/11

8/11

11/11

10/11