Magic, angels and devils in the Jewish traditionClosed11y 02w 05d 01h 14m 57s
11y 02w 05d 01h 14m 57s
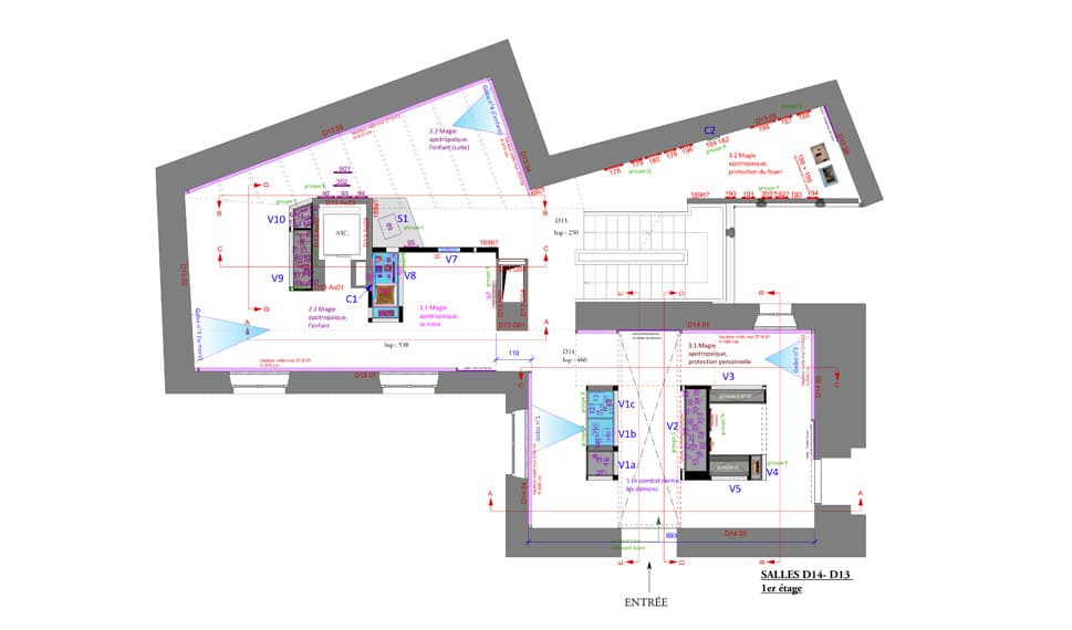
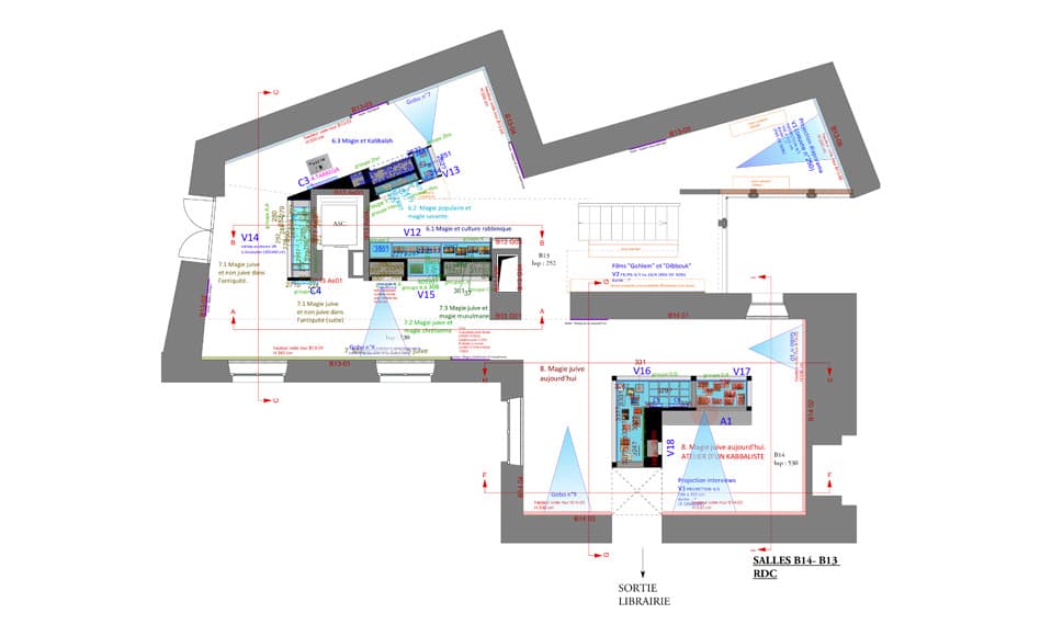
03.2015temporary exhibitionArea : 340 M²

1/7
Museum of Jewish Art and History,Paris, France
Owner
Museum of Jewish Art and History
Collaboration
c-album (graphic design)

2/7

3/7

5/7

4/7

7/7

6/7