The OuLiPo or literature at playClosed11y 19w 06d 01h 12m 04s
11y 19w 06d 01h 12m 04s
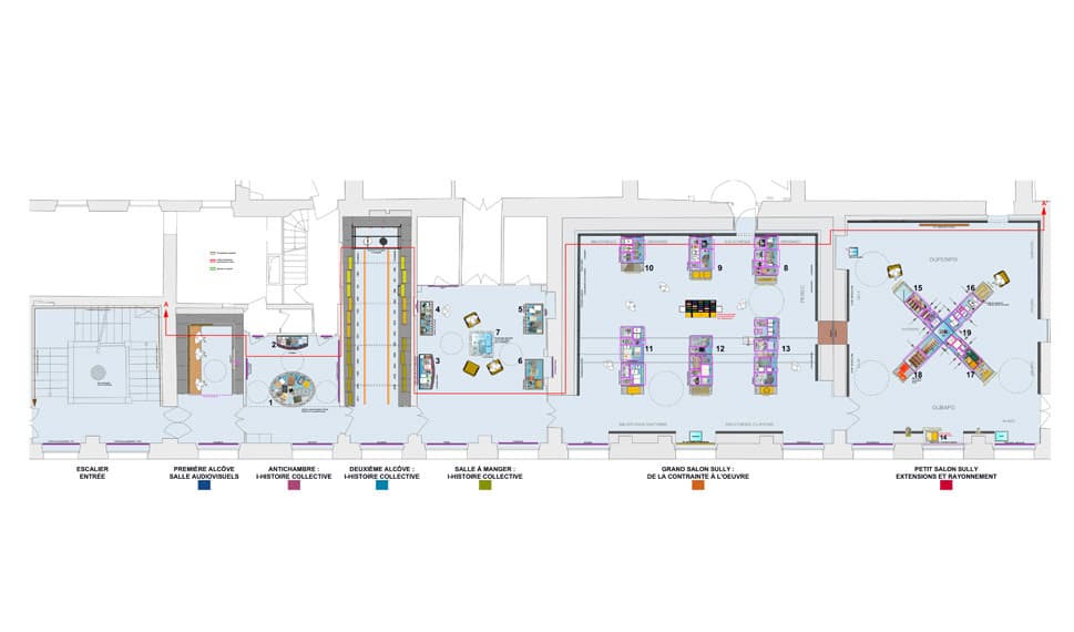
11.2014temporary exhibitionArea : 300 M²

1/7
Arsenal Library,Paris, France
Owner
The Bibliothèque nationale de France
Collaboration
c-album (graphic design)

3/7

2/7

5/7

4/7

6/7

7/7