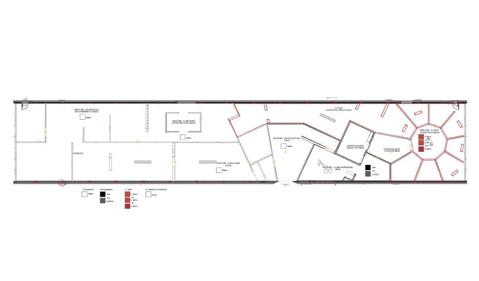
Paparazzi! Photographers, stars and artistsClosed12y 14w 05d 12h 32m 58s
12y 14w 05d 12h 32m 58s
02.2014temporary exhibitionArea : 1200 M²

1/7
The Centre Pompidou,Metz, France
Owner
The Centre Pompidou-Metz

3/7

2/7

5/7

4/7

7/7

6/7

The Centre Pompidou-Metz





