Villa du Temps RetrouvéPermanent04y 40w 06d 05h 07m 33s
04y 40w 06d 05h 07m 33s
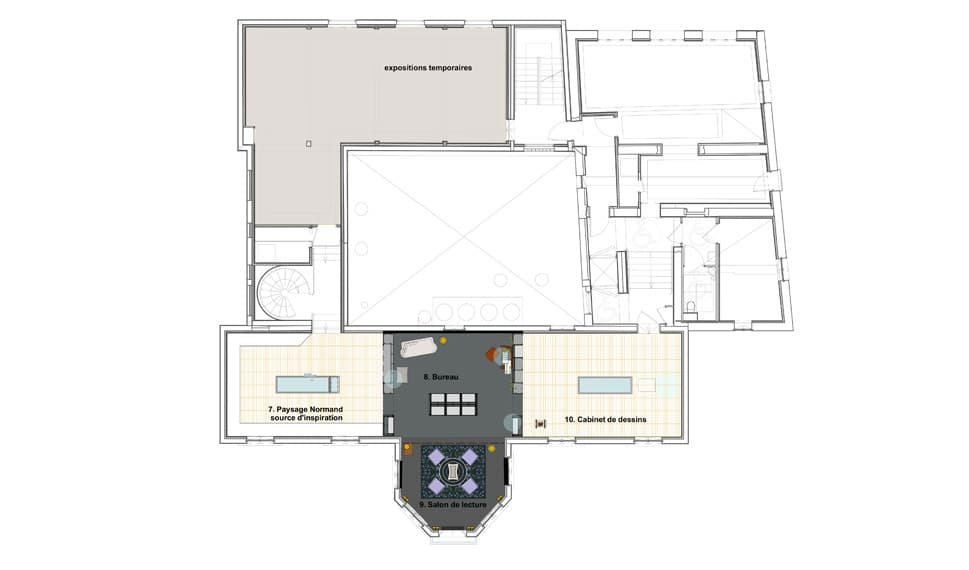
06.2021permanent exhibitionArea : 700 M²

1/13
The Villa Bon-Abri,Cabourg, France
Owner
City Hall of Cabourg
Collaboration
c-album (graphic design), ACL (lighting), La Méduse (audiovisual)
Photos credits
© Nicolas Trouillard

2/13

3/13

5/13

4/13

6/13

7/13

9/13

8/13

11/13

10/13

13/13

12/13