Christian Dior Designer of Dreams - DohaExposition terminée04a 26s 04j 13h 22m 48s
04a 26s 04j 13h 22m 48s
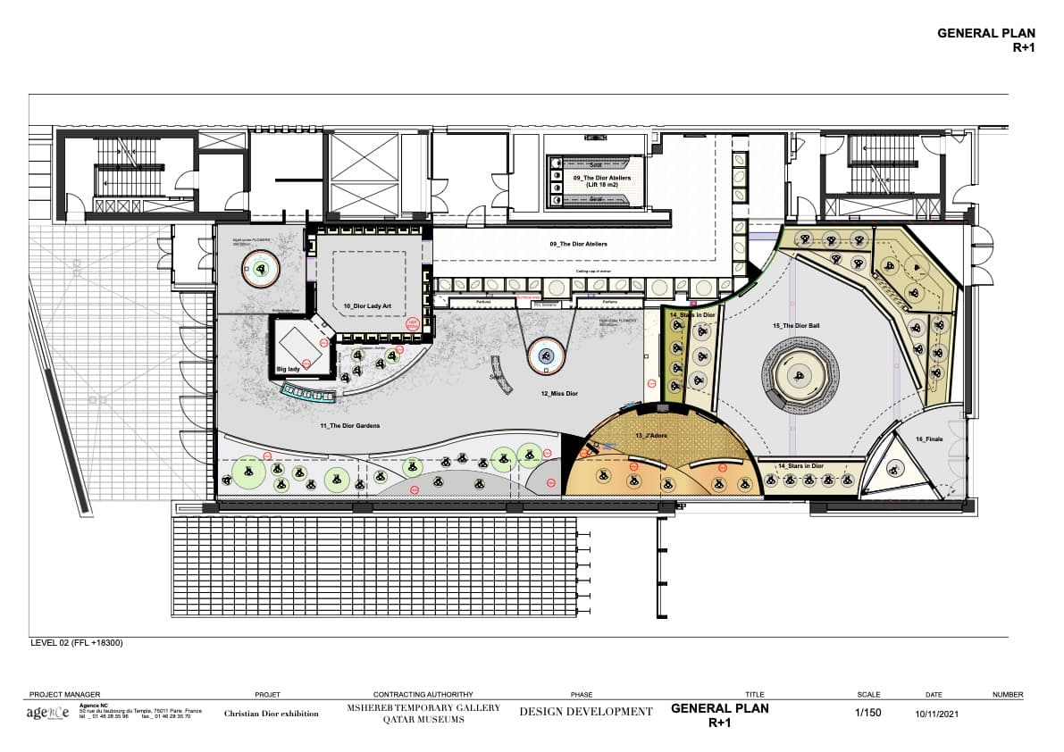
11.2021exposition temporaire, itinéranceSurface : 1800 M²

1/11
Qatar Museums,Doha, Qatar
Collaboration
Anamorphée (graphisme), Lightemotion (éclairage), La Méduse (audiovisuel)
Maitrise d'ouvrage
Dior
Crédit photos
Dior

3/11

2/11

4/11

5/11

7/11

6/11

8/11

9/11

10/11
11/11