Lumière ! Le Cinéma inventéExposition terminée08a 49s 01j 11h 19m 44s
08a 49s 01j 11h 19m 44s
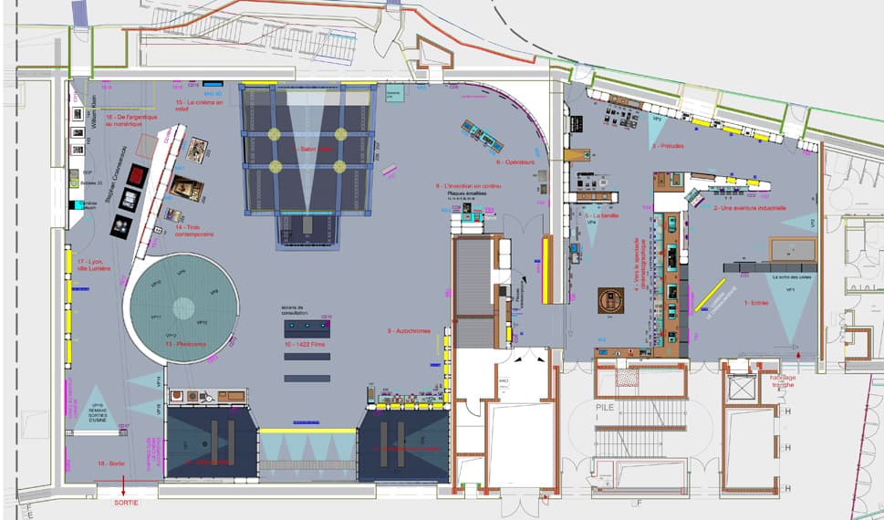
06.2017exposition temporaire, itinéranceSurface : 1000 M²

1/9
Musée des Confluences,Lyon, France
Maitre d'ouvrage
Institut Lumière / Musée des Confluences
Collaboration
c-album (graphisme), F. Austerlitz et M. Blaise (éclairage), Alighieri (soclage), Artimachines (manips), H. Bezdijian (audiovisuel)

3/9

2/9

5/9

4/9

7/9

6/9

9/9
8/9